UBICAZIONE:
Il cantiere di proprietà di Glorious Victory Group S.r.l. e di Immobiliare Villa Antica S.r.l. sorge sulle morbide e fertili colline di Offagna piccolo Comune dell’entroterra marchigiano che dista pochi km da Ancona in posizione panoramica e strategica , in zona molto tranquilla e riservata dove possiamo ritrovare la pace e la serenità di un tempo. Offagna offre ai propri abitanti tutti i servizi di prima necessità; scuole, da quella dell’infanzia alla scuola a quella media, farmacie, banche, ufficio postale, guardia medica, ristoranti, supermercato e negozi vari. Simbolo di Offagna è sicuramente il suo tipico borgo medioevale con la maestosa rocca risalente al 1454 d.C. che, durante il periodo estivo, più precisamente la penultima settimana di luglio, diventa protagonista della celebre festa medioevale e richiama migliaia di visitatori e numerosi artisti da tutta la penisola che animano per l’intera settimana le vie del borgo. La particolarità e la conservazione del piccolo centro storico hanno fatto sì che Offagna rientri di gran merito tra i borghi più belli d’Italia.
DESCRIZIONE:
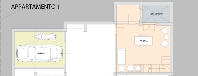
A ridosso del centro di Offagna in posizione panoramica e soleggiata è in corso la realizzazione di un nuovo centro residenziale nel quale la tranquillità, gli spazi verdi e la vista aperta sia sul mare che sul borgo rendono questo complesso veramente unico. E’ prevista la realizzazione di diverse tipologie di appartamenti, dalla villetta quadrifamiliare con alloggi di varie metrature, alla casa a schiera cielo-terra, comunque tutti dotati di ingresso indipendente, cantina e garage; gli appartamenti posti al piano terra sono abbinati a giardini e taverne collegate all’appartamento tramite scala interna.
Per quanto riguarda le finiture interne i clienti potranno scegliere presso i fornitori da noi indicati i pavimenti, i rivestimenti, i sanitari le rubinetterie e le porte interne il tutto delle migliori marche presenti sul mercato, personalizzando a loro gusto il proprio appartamento.
Le finestre e le portefinestre degli alloggi saranno in legno lamellare di prima scelta con vetrocamera e dotati di doppia guarnizione di tenuta mentre per gli infissi esterni verranno utilizzate persiane in alluminio anodizzato prive di manutenzione. In tutti gli alloggi verranno installati portoncini blindati muniti di idoneo rivestimento sia esterno che interno il quale, è personalizzabile da parte del cliente.
L’impianto di riscaldamento come tutte le altre utenze, sarà autonomo per ciascun alloggio ed alimentato da una caldaia a metano che provveda sia alla produzione di acqua calda per gli apparecchi igienico-sanitari, sia ad alimentare i singoli corpi scaldanti.
Serietà, professionalità, cura nella costruzione ed esperienza sono le doti che ci contraddistinguono e ci accompagnano ormai da decenni.









